Padel speelveld
C0069
Laatst gewijzigd op: 26 september 2024
Alleen verplichte onderdelen
Advies
Aanbeveling
Datgene wat wordt aanbevolen omdat doorgaans mag worden aangenomen dat de uitwerking ervan gunstig is.
Neem contact op met de KNLTB over het opzetten en inrichten van outdoor en indoor padelbanen.
Algemeen
Voorschrift
Regel die men moet volgen.
De padelbaan bestaat uit een speelveld in een padelkooi.
De padelkooi is onderdeel van het speelveld.
Afmetingen speelveld
Voorschrift
Regel die men moet volgen.
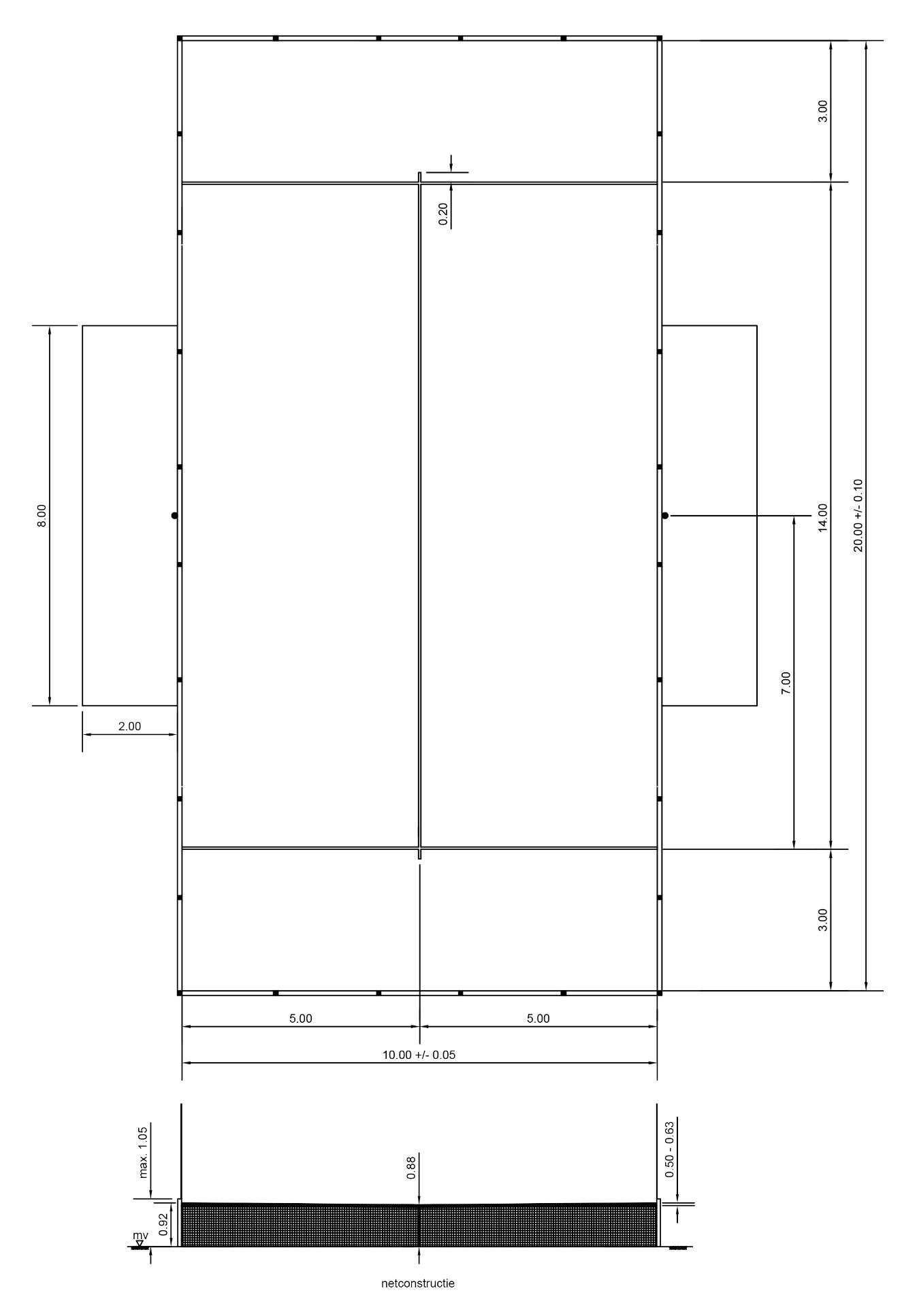
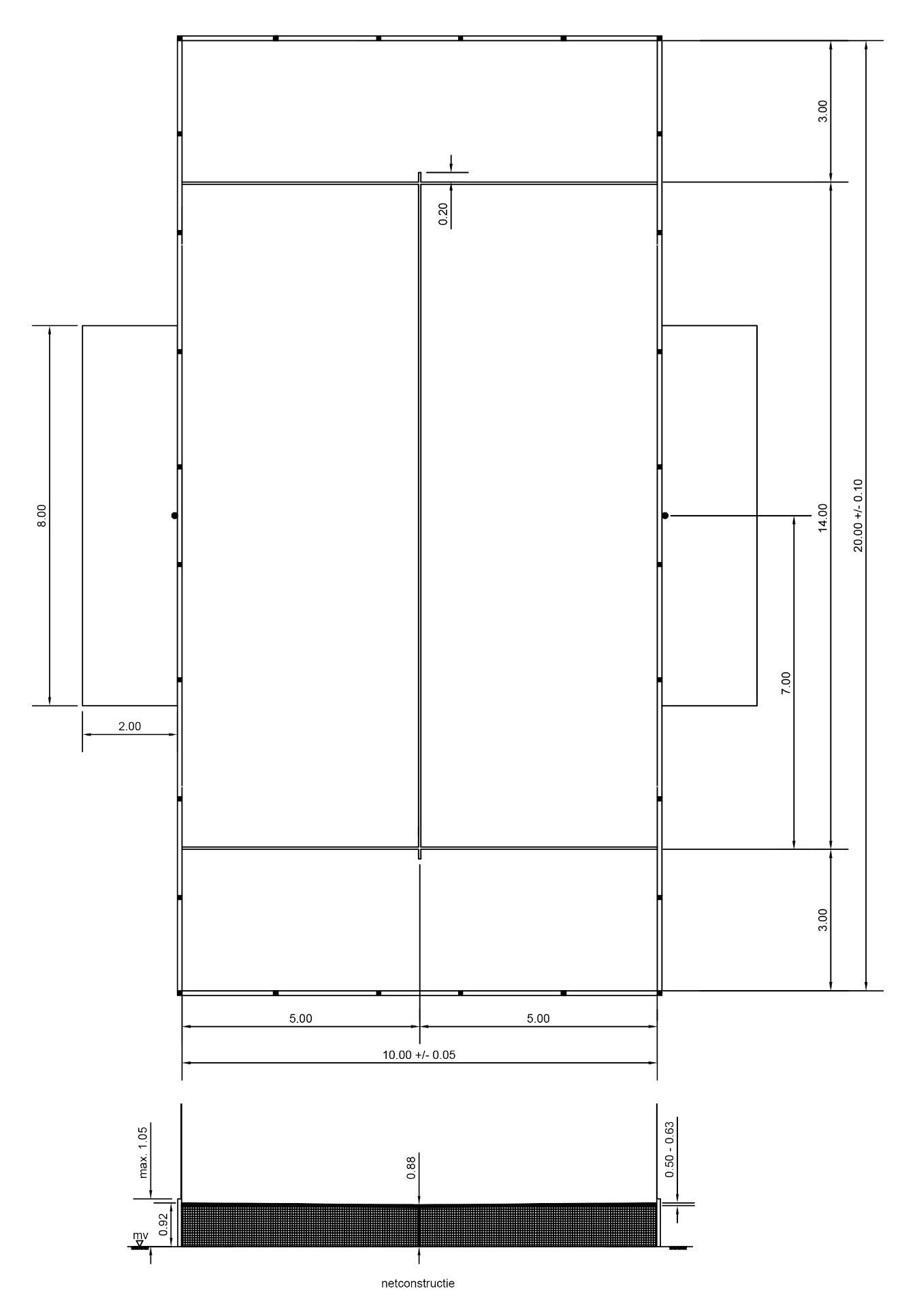
De padelbaan is aan de binnenkant (het speelveld) 20.000 mm lang.
Voorschrift
Regel die men moet volgen.
De padelbaan is aan de binnenkant (het speelveld) 10.000 mm breed.
Voorschrift
Regel die men moet volgen.
De lengte en breedte is exclusief de kooi (constructie).
De afmetingen van padelbanen zijn opgenomen in tabel L040 Maatvoering padelbaan.
Maatvoering padelbaan (V)
| Lengte | Breedte | |
|---|---|---|
| Speelveld | 20.000 mm | 10.000 mm |
Tolerantie afmetingen
Voorschrift
Regel die men moet volgen.
De tolerantie van de afmetingen van het speelveld, inclusief de obstakelvrije uitloop, is 50 mm in de lengte en in de breedte.
Hoogte speelveld
Eindwanden
Voorschrift
Regel die men moet volgen.
De eindwanden, of wanden aan de kopse zijde, zijn 4.000 mm hoog.
Zijwanden
Voorschrift
Regel die men moet volgen.
De zijwanden zijn over een lengte van 2.000 mm, vanaf de eindwanden, 4.000 mm hoog.
Voorschrift
Regel die men moet volgen.
De zijwanden zijn over een lengte van 16.000 mm, in het midden van de zijwanden, 3.000 mm hoog.
Constructie padelkooi
Eindwanden
Voorschrift
Regel die men moet volgen.
De eindwandenbestaan vanaf de grond tot een hoogte van 3.000 mm uit glas.
Voorschrift
Regel die men moet volgen.
De eindwandenbestaan boven de glazen wand uit een metalen hekwerk met een hoogte van 1.000 mm.
Zie tekening D0199 Eindwanden padelkooi

Zijwanden standaard
Voorschrift
Regel die men moet volgen.
De zijwanden bestaan uit 10 panelen van 2.000 mm breed, inclusief de constructie van de panelen.
Voorschrift
Regel die men moet volgen.
De buitenste panelen van de zijwanden vanaf de eindwanden, bestaan vanaf de grond tot een hoogte van 3.000 mm uit glas.
Voorschrift
Regel die men moet volgen.
De panelen direct naast de buitenste panelen vanaf de eindwanden, bestaan vanaf de grond tot een hoogte van 2.000 mm uit glas.
Voorschrift
Regel die men moet volgen.
De zijwanden bestaan over de eerste 4.000 mm vanaf de eindwanden, boven de glazen wand uit een metalen hekwerk met een hoogte van 1.000 mm.
Voorschrift
Regel die men moet volgen.
De middelste 6 panelen van de zijwanden bestaan uit een metalen hekwerk met een hoogte van 3.000 mm.
Zie tekening D0200 Zijwanden padelkooi standaard kooi

Zijwanden WPT-kooi
Voorschrift
Regel die men moet volgen.
De zijwanden van een WPT-kooi zijn gelijk aan die van een standaard kooi, behalve de panelen direct naast de buitenste panelen vanaf de eindwanden.
Voorschrift
Regel die men moet volgen.
De panelen direct naast de buitenste panelen vanaf de eindwanden, bestaan vanaf de grond tot een hoogte van 3.000 mm uit glas.
Voorschrift
Regel die men moet volgen.
Zie tekening D0201 Zijwanden padelkooi WPT-kooi.D0201 Zijwanden padelkooi (WPT-kooi)
Voorschrift
Regel die men moet volgen.
De constructie van de padelkooi voldoet aan de voorschriften van normbladen N092 Padelbaan en N091 Kooiconstructie padelbaan.
Richtlijn
Regel waarvan men gemotiveerd mag afwijken.
De staanders van de padelkooi staan aan de buitenzijde.
Zijaanzicht
Zie tekening D0254 Zijaanzicht padelkooi

Bovenaanzicht
Zie tekening D0255 Bovenaanzicht padelkooi

Afwerking wanden
Functie materiaal
Voorschrift
Regel die men moet volgen.
De gehele kooi, behalve de metalen delen, is gemaakt van materiaal dat een normale stuit van de bal mogelijk maakt.
Voorschrift
Regel die men moet volgen.
De metalen wand, of het hekwerk laat de bal niet op een uniforme manier botsen enterug-stuiten.
Voorschrift
Regel die men moet volgen.
Het raster heeft een voldoende spanning om de bal te laten stuiten.
Glazen wanden
Algemeen
Voorschrift
Regel die men moet volgen.
Glazen wanden voldoen aan EU-standaard NEN-EN 12150-1
Dikte glas
Voorschrift
Regel die men moet volgen.
Thermisch gehard glas bevestigd aan metalen stijlen is ten minste 10 mm dik.
Voorschrift
Regel die men moet volgen.
Thermisch gehard, panoramisch glas bevestigd aan de boven- en onderzijde, is ten minste 12 mm dik.
Ruimte
Voorschrift
Regel die men moet volgen.
De ruimte tussen glasplaten, behalve in de hoeken, is ten hoogste 5 mm.
Voorschrift
Regel die men moet volgen.
De ruimte tussen glasplaten in de hoeken, is ten hoogste 8 mm.
Afwerking verbindingen
Voorschrift
Regel die men moet volgen.
De verbindingen tussen glasplaten verlopen vlak.
Metalen wanden
Constructie
Voorschrift
Regel die men moet volgen.
Het metalen hekwerk van de wanden is gemaakt van gelaste vierkanten.
Voorschrift
Regel die men moet volgen.
De horizontale draden van de gelaste vierkanten liggen aan de binnenzijde.
Voorschrift
Regel die men moet volgen.
Dev erticale draden van de gelaste vierkanten liggen aan de buitenzijde.
Voorschrift
Regel die men moet volgen.
Het metalen hekwerk heeft overal gaten van dezelfde afmetingen.
Afmetingen raster
Voorschrift
Regel die men moet volgen.
De gaten in het hekwerk zijn ten minste 50 mm groot.
Voorschrift
Regel die men moet volgen.
De gaten in het hekwerk zijn ten hoogste 70,8 mm groot.
Voorschrift
Regel die men moet volgen.
De randen van het raster zijn ten minste 1,6 mm dik.
Voorschrift
Regel die men moet volgen.
De randen van het raster zijn ten hoogste 4 mm dik.
Aanbeveling
Datgene wat wordt aanbevolen omdat doorgaans mag worden aangenomen dat de uitwerking ervan gunstig is.
De randen van het raster zijn ten hoogste 3 mm dik.
Veiligheid
Voorschrift
Regel die men moet volgen.
De padelkooi veroorzaakt geen verwondingen en beklemmingen.
Vlakheid overgang
Voorschrift
Regel die men moet volgen.
Oneffenheden in de overgang van glas naar metaal zijn ten hoogste 4 mm.
Voorschrift
Regel die men moet volgen.
Oneffenheden in de overgang van glas naar glas zijn ten hoogste 2 mm.
Sportvloer
Algemeen
Informatie over de eisen en voorschriften die worden gesteld aan de sportvloeren voor padel, is te vinden in de NOC*NSF normen en KNLTB Accommodatiebepalingen Padel.
Voorschrift
Regel die men moet volgen.
Het speelveld van de padelkooi voldoet aan de voorschriften in normblad N092 Padelbaan.
Ondergrond
Voorschrift
Regel die men moet volgen.
De ondergrond maakt een reguliere stuit van de bal mogelijk.
Voorschrift
Regel die men moet volgen.
De ondergrond voorkomt ophoping van water.
Voorschrift
Regel die men moet volgen.
Een synthetische ondergrond voldoet aan Europese normen voor synthetische sportvloeren.
Materiaal toplaag
Voorschrift
Regel die men moet volgen.
De sportvloer bestaat uit kunstgras en hardcourt (beton).
Voorschrift
Regel die men moet volgen.
Een synthetische toplaag voldoet aan Europese normen voor synthetische sportvloeren.
Zie ook normblad van NOC*NSF en KNLTB N094 Zandkunstgras.
Kleur toplaag
Voorschrift
Regel die men moet volgen.
De sportvloer van de padelbaan heeft standaard één egale kleur. Het gebruik van twee kleuren in het speelveld voor het servicevak en achterveld is toegestaan mits het materiaal (declaratie) en de kwaliteit van de sportvloer identiek is met uitzondering van kleur. De kleur van de veiligheidszone mag afwijken van de kleur van het speelveld.
Voorschrift
Regel die men moet volgen.
De sportvloer van de veiligheidszones heeft één egale kleur die contrasteert met de kleur van de vloer rondom de padelbaan.
Aanbeveling
Datgene wat wordt aanbevolen omdat doorgaans mag worden aangenomen dat de uitwerking ervan gunstig is.
De kleurkeuze van het kunstgras is vrij mits duidelijk contrasterend met de belijning. Aanbevolen wordt blauw, groen of terracotta. De kleur zwart wordt voor buitenbanen sterk afgeraden.
Voorschrift
Regel die men moet volgen.
Patronen, logo’s en dergelijke op de sportvloer zijn niet toegestaan.
Voorschrift
Regel die men moet volgen.
De kleur van de ondergrond contrasteert met de kleur van de wand.
Vlakheid
Voorschrift
Regel die men moet volgen.
Hoogteverschillen in de oppervlakte van de sportvloer zijn ten hoogste 3 mm, gemeten met een rei van 3.000 mm.
Voorschrift
Regel die men moet volgen.
Afschot in de breedterichting is niet toegestaan.
Voorschrift
Regel die men moet volgen.
Afschot in lengte richting is niet toegestaan.
Fundatie padelbaan
Voorschrift
Regel die men moet volgen.
De fundatie onder een padelbaan is zo hard mogelijk.
Voorschrift
Regel die men moet volgen.
De padelbaan heeft een gebonden fundering.
Obstakelvrije hoogte
Voorschrift
Regel die men moet volgen.
De obstakelvrije hoogte boven de padelbaan is ten minste 6.000 mm.
Richtlijn
Regel waarvan men gemotiveerd mag afwijken.
De obstakelvrije hoogte boven de padelbaan is ten minste 8.000 mm.
Toelichting
Er worden twee haltypen gehanteerd. Hal type A heeft een vrije hoogte van ten minste 8.000 mm. Deze hal is geschikt voor padel op alle niveaus, van recreatief tot en met topsport op internationaal niveau. Hal type B heeft een vrije hoogte van ten minste 6.000 mm. Deze hal is geschikt voor recreatief gebruik en voor wedstrijden tot nationaal (club)niveau.
Obstakelvrije kooi
Voorschrift
Regel die men moet volgen.
Er zijn, behalve het net, geen obstakels in de padelkooi.
Toegang tot de baan
Aantal
Voorschrift
Regel die men moet volgen.
De baan heeft 2 toegangen aan beide zijde van de baan.
Positie
Voorschrift
Regel die men moet volgen.
Er is een doorgang aanbeide zijden van het net.
Voorschrift
Regel die men moet volgen.
Een toegang ligt ten minste 9.000 mm van de eindwand.
Afmetingen toegang
Voorschrift
Regel die men moet volgen.
Een toegang is 2.200 mm hoog.
Voorschrift
Regel die men moet volgen.
Een toegang is ten minste 1.050 mm breed.
Voorschrift
Regel die men moet volgen.
Een toegang is ten hoogste 2.000 mm breed.
Veiligheidszone
Algemeen
Richtlijn
Regel waarvan men gemotiveerd mag afwijken.
Het speelveld heeft aan elke zijde van de padelbaan twee veiligheidszones.
Voorschrift
Regel die men moet volgen.
De veiligheidszone mag niet worden gecombineerd met de veiligheidszone van een andere padelbaan.
Toelichting Een veiligheidszone is een ‘eigen’ ruimte.
Toegang
Voorschrift
Regel die men moet volgen.
De veiligheidszones kunnen vanuit de ruimte buiten de padelbanen aan beide kopse zijden van de veiligheidszone worden betreden.
Voorschrift
Regel die men moet volgen.
Beide veiligheidszones hebben aan elke zijde van het net een toegang naar de padelbaan.
Zie tekening D0202 Belijning padelbaan

Constructie
Voorschrift
Regel die men moet volgen.
Het speelveld (inclusief veiligheidszone) wordt uitgevoerd in dezelfde constructie.
Materialen
Voorschrift
Regel die men moet volgen.
De materialen die gebruikt zijn voor een veiligheidszone zijn identiek aan de gebruikte materialen van de padelbaan.
Veiligheid
Aanbeveling
Datgene wat wordt aanbevolen omdat doorgaans mag worden aangenomen dat de uitwerking ervan gunstig is.
De toegangen zijn aan de bovenzijde en de zijkanten voorzien van veiligheidskussens.
Aanbeveling
Datgene wat wordt aanbevolen omdat doorgaans mag worden aangenomen dat de uitwerking ervan gunstig is.
Veiligheidskussen aan de randen van de toegangen zij ten minste 20 mm dik.
Vloer
Toplaag
Voorschrift
Regel die men moet volgen.
De veiligheidszone heeft dezelfde toplaag en ondergrond als het speelveld van de padelbaan.
Voorschrift
Regel die men moet volgen.
Een metalen plaat of andere verharding in de veiligheidszone is niet toegestaan.
Kleur
Aanbeveling
Datgene wat wordt aanbevolen omdat doorgaans mag worden aangenomen dat de uitwerking ervan gunstig is.
De kleur van de vloer van veiligheidszone contrasteert met de kleur van de vloer van de padelbaan.
Afmetingen
Voorschrift
Regel die men moet volgen.
De obstakelvrije hoogte van de veiligheidszone is ten minste 6.000 mm hoog.
Aanbeveling
Datgene wat wordt aanbevolen omdat doorgaans mag worden aangenomen dat de uitwerking ervan gunstig is.
De obstakelvrije hoogte van de veiligheidszone is ten minste 8.000 mm hoog.
Voorschrift
Regel die men moet volgen.
De veiligheidszone is ten minste 2.000 mm breed, gemeten vanaf de buitenzijde van de wand van de padelbaan tot de wand van de veiligheidszone.
Voorschrift
Regel die men moet volgen.
De veiligheidszone is ten minste 2.000 mm breed, gemeten vanaf de buitenzijde van de wand van de padelbaan tot het eerste obstakel in de veiligheidszone.
Voorschrift
Regel die men moet volgen.
De veiligheidszone is vanaf het midden van de padelbaan naar beide zijden ten minste 4.000 mm lang.
Ruimte tussen padelbanen
Zonder veiligheidszone
Aanbeveling
Datgene wat wordt aanbevolen omdat doorgaans mag worden aangenomen dat de uitwerking ervan gunstig is.
De ruimte tussen 2 padelbanen zonder een veiligheidszone is ten minste 1.200 mm.
Belijning speelveld
Algemeen
Voorschrift
Regel die men moet volgen.
De belijning is nauwkeurig.
Breedte lijnen
Voorschrift
Regel die men moet volgen.
De breedte van de lijnen is 50 mm.
Servicelijnen
Voorschrift
Regel die men moet volgen.
Er zijn servicelijnen aan beide zijden van het net.
Voorschrift
Regel die men moet volgen.
De servicelijnen lopen parallel aan het net.
Voorschrift
Regel die men moet volgen.
De servicelijnen liggen op exact 6.950 mm van het midden van het veld, exclusief de servicelijn.
Voorschrift
Regel die men moet volgen.
Het servicevak is 7.000 mm breed, inclusief de servicelijn.
Centrale servicelijn
Voorschrift
Regel die men moet volgen.
Er is een centrale servicelijn in de lengterichting van het veld.
Voorschrift
Regel die men moet volgen.
De centrale servicelijn loopt exact in het midden van het veld.
Voorschrift
Regel die men moet volgen.
De centrale servicelijn deelt de servicelijnen verticaal en loodrecht in tweeën.
Voorschrift
Regel die men moet volgen.
De centrale servicelijn 14.400 mm lang.
Voorschrift
Regel die men moet volgen.
De centrale servicelijn loopt 200 mm door voorbij een servicelijn.
Kleur
Voorschrift
Regel die men moet volgen.
De belijning contrasteert met de kleur van de ondergrond.
Aanbeveling
Datgene wat wordt aanbevolen omdat doorgaans mag worden aangenomen dat de uitwerking ervan gunstig is.
De kleur van de belijning is wit.