Pickleball speelveld
C0425
Laatst gewijzigd op: 16 januari 2025
Op deze pagina
Alleen verplichte onderdelen
Situering
Aanbeveling
Datgene wat wordt aanbevolen omdat doorgaans mag worden aangenomen dat de uitwerking ervan gunstig is.
De banen liggen in de lengterichting NNW-ZZO.
Aanbeveling
Datgene wat wordt aanbevolen omdat doorgaans mag worden aangenomen dat de uitwerking ervan gunstig is.
Pickleball valt ook onder het activiteitenbesluit. Daarom is het verstandig om inzicht te krijgen in de mogelijke geluidsbelasting.
Aanbeveling
Datgene wat wordt aanbevolen omdat doorgaans mag worden aangenomen dat de uitwerking ervan gunstig is.
De baan wordt aangelegd op een plek waar de wind zo min mogelijk invloed heeft.
Afmetingen en belijning
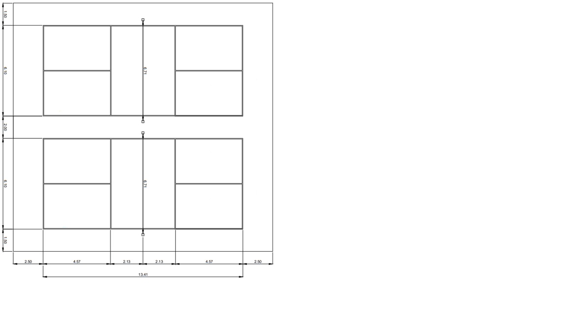
Afmetingen (zie figuur 1 voor totaaloverzicht)
Richtlijn
Regel waarvan men gemotiveerd mag afwijken.
Het speelveld is een rechthoek.
Richtlijn
Regel waarvan men gemotiveerd mag afwijken.
Het speelveld is 6.100 mm breed voor zowel dubbel- als enkelspel.
Richtlijn
Regel waarvan men gemotiveerd mag afwijken.
Het speelveld is 13.410 mm lang voor zowel dubbel- als enkelspel.
Richtlijn
Regel waarvan men gemotiveerd mag afwijken.
De afmetingen van de baan worden vanaf de buitenkant van de omtreklijn en de breedtelijn (non-volleylijnen) gemeten.
Uitloop
Richtlijn
Regel waarvan men gemotiveerd mag afwijken.
De achteruitloop is minimaal 2.500 mm.
Richtlijn
Regel waarvan men gemotiveerd mag afwijken.
De zij-uitloop naar hek/wand is minimaal 1.500 mm.
Richtlijn
Regel waarvan men gemotiveerd mag afwijken.
De tussenuitloop (als sprake is van twee banen naast elkaar) is minimaal 2.000 mm. Zie figuur 1.

Oppervlakte
Richtlijn
Regel waarvan men gemotiveerd mag afwijken.
De totale oppervlakte van één baan is 9.100 mm maal 18.410 mm.
Richtlijn
Regel waarvan men gemotiveerd mag afwijken.
De totale oppervlakte van twee banen is 17.200 mm maal 18.410 mm.
Belijning
Richtlijn
Regel waarvan men gemotiveerd mag afwijken.
De twee halve velden zijn symmetrisch.
Richtlijn
Regel waarvan men gemotiveerd mag afwijken.
Alle lijnen zijn minimaal 50 mm en maximaal 50,8 mm breed.
Aanbeveling
Datgene wat wordt aanbevolen omdat doorgaans mag worden aangenomen dat de uitwerking ervan gunstig is.
Alle lijnen zijn wit.
Richtlijn
Regel waarvan men gemotiveerd mag afwijken.
Alle lijnen hebben dezelfde kleur.
Richtlijn
Regel waarvan men gemotiveerd mag afwijken.
Alle lijnen hebben een duidelijk contrast met de kleur van het speeloppervlak.
Richtlijn
Regel waarvan men gemotiveerd mag afwijken.
De breedtelijn ligt aan beide zijden parallel aan het net.
Richtlijn
Regel waarvan men gemotiveerd mag afwijken.
De breedtelijn ligt op een afstand van 2.130 mm van het midden van het veld.
Richtlijn
Regel waarvan men gemotiveerd mag afwijken.
De middenlijn deelt de servicevakken verticaal en loodrecht in tweeën.
Indoor
Richtlijn
Regel waarvan men gemotiveerd mag afwijken.
Voor indoorbanen gelden dezelfde afmetingen als outdoor met de volgende twee aanvullingen:
- De vrije hoogte over het gehele speelveld is minimaal 6.000 mm.
- De lichtpunthoogte wordt minimaal op of boven 6.000 mm bevestigd.
Reclame
Aanbeveling
Datgene wat wordt aanbevolen omdat doorgaans mag worden aangenomen dat de uitwerking ervan gunstig is.
Fluorescerende kleuren zoals geel of wit worden sterk afgeraden.
Richtlijn
Regel waarvan men gemotiveerd mag afwijken.
Reclame en andere afbeeldingen of materiaal zijn niet toegestaan op het baanoppervlak binnen de lijnen van het speelveld.